嘉義市近福容飯店全新邊間雙車別墅1

嘉義市西區北社尾路

2,000
  • 94 點閱
  • 0 收藏
  • 2025/9/9 18:00 更新
以上之照片若係外觀,街景或其他非室內照片者,為該物件之環境介紹。
每坪單價:
約 34.5 萬/坪
總坪數:
約 58 坪
屋齡:
0 年
類型:
住宅 / 別墅
樓層:
1-4樓 / 4樓
格局:
  • 3房
  • 3廳
  • 4衛
  • 2陽台
王小姐
王小姐
仲介 (收服務費)
公 司:中信房屋嘉義公明店
經紀業:恆昌不動產企業社
地 址:嘉義市公明路47號

詳細資料

基本資料
總價
2,000 萬
地址
嘉義市西區北社尾路
用途
住家用
類型
住宅
型態
別墅
格局
  • 3房
  • 3廳
  • 4衛
  • 2陽台
樓 / 總樓層
1-4樓 / 4樓
屋齡
0 年
管理費
元/月
物件特色

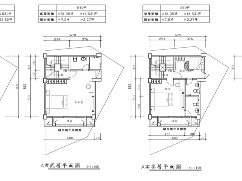
總地坪:36.195坪
(含路持:7.765坪)
建坪:58.13坪
格局:3房3廳4衛
總樓層:3樓半別墅
建築完成:民國114年3月完工
座向:朝西南
面寬:約5.6米
臨路:6米路

全新未住,邊間,小雙車庫
整層主臥,間間套房,神明廳
採光通風佳
近國1高速公路、北港路、通勤族首選
嘉義市稀少全新免2000萬

 

★★禮賓專線★ ★請洽:☎0989-678-555

0918-770-659   05-2311058     王小姐


或私訊加Line的ID: akira791026
了解物件詳情、成交情資⬇️請加我的
免費通話、免費傳訊,溝通更方便!
🔸🔸🔸🔸🔸🔸
📞速撥+
嘉義縣市不動產顧問王小姐
營業員證號104登字第294916號

 

【廣告資訊3個月後即期失效 】

 

中信房屋嘉義公明加盟店
恆昌不動產企業社
經紀人:江武忠
110嘉市字第00148号


 

🔸🔸🔸🔸🔸🔸🔸🔸
📢誠邀委託或介紹成交紅包酬謝

📣嘉義買屋、賣屋,實價登錄,行情分析,您的專屬不動產顧問。
專營#嘉義縣市#雲嘉南縣市等多縣市不動產

🎯#如沒看到你重要訊息請來電或
加 馬上跟你聯絡感謝

🎯#錢放在 越來越薄,投資房地產錢越來越多💵

🎯#價格是談出來~不是等出來的

🎯#有喜欢出價幫你談~歡迎詢問我~為你安排感謝你💪

😍😍😍歡迎點閱
下列網址歡迎 進來參觀 選購或直接來電詢問 我的店鋪🙏

http://0918533888.yes319.com/

❤️#我的店鋪有~
有更多房屋/透天/別墅/豪宅/建地/ 農地/店面/ 廠房/豬舍/雞舍/ 鴨 鹅舍/ 出租房屋厰房等多項服務🙏

❤️#歡迎介紹土地房子委託有成交必有重金答謝 必有重金答謝🙏

❤️#免費估價諮詢您房地產急可買斷 可買斷

❤️#有專業空拍實境團隊讓你房地更有價值美感

❤️#各位大大如有多的房地產要割愛請給我機會感謝感恩🙏

❤️#我有很多潛在客戶定全力以赴不負所託🙏
感恩給我機會😍 0989-678-555 王小姐
——————————
📣嘉義最大房仲團隊,一店委託近200 人服務!

📣嘉義地區最大房仲團隊,優異超乎您的想像

📣嘉義地區最深值人心的房仲團隊,我們是嘉義人
——————————
#中信房屋 #嘉義最大房仲團隊 #有心最要緊 #店數最多 #成交最快 #案源最廣 #流通最快 #土地 #廠房 #豪宅

 

  • 有陽台

更多嘉義市售屋



本系統為開放房屋買賣網站建置平台,僅提供會員查詢嘉義市西區售屋資訊參考,並不涉入任何諮詢、交易。 物件(服務)聯絡人公佈的資訊、文字、照片、圖形、產權、廣告內容、或其他資料若有不實或違法情事,或與客戶聯絡交易過程中若衍生民事或刑事等法律問題,皆與本網站無關,所有商標、文章、名稱等版權,皆歸屬原著作者所有!
載入中...